导航
行业资讯
行业动态
本站公告
网上商城
行业标准
行业方案
行政审批
危房改造
建筑市场
房地产
智慧城市
住建云
城建档案
BIM技术
专题专栏
成功案例
PPT文稿
GIS专题
视频学习
考试题库
图片资料
旅游地理
代码共享
软件下载
会员服务
会员中心
人才招聘
答疑解惑
APP下载
百科文库
智慧住建
项目文库
住建动态
考试题库
企业专题
人员专题
精美图库
IT技术
旅游地理
PPT文稿
源代码下载
软件下载
精品热门
看过
消息
未登录
您所在位置:
网站首页
>
精美图库
陕南—16号农村民居方案.rar
下载资源
2021年09月18日发布
约5.36MB
708
0
0
/ 28
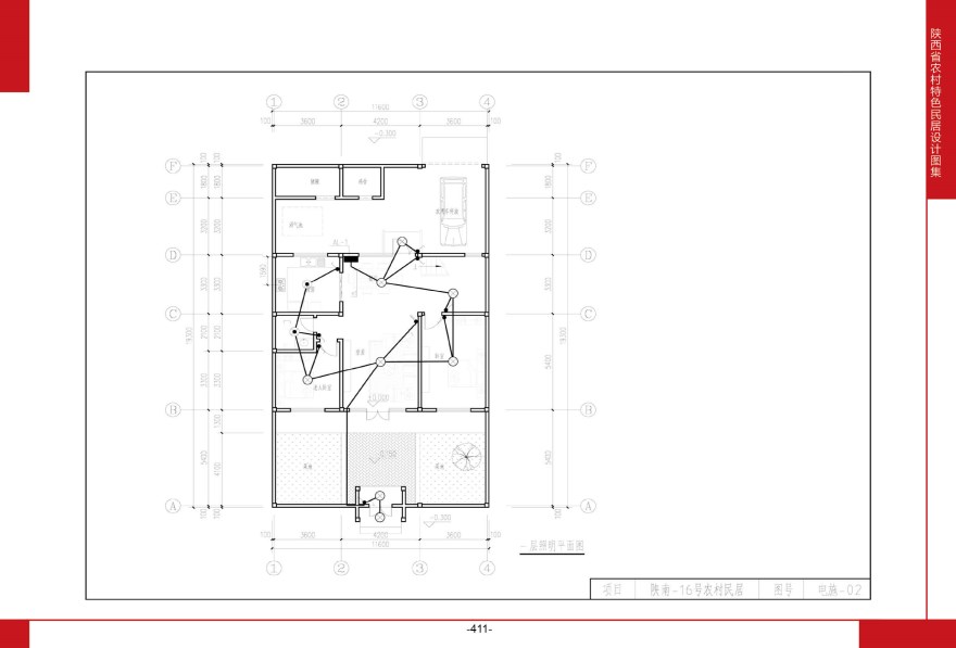
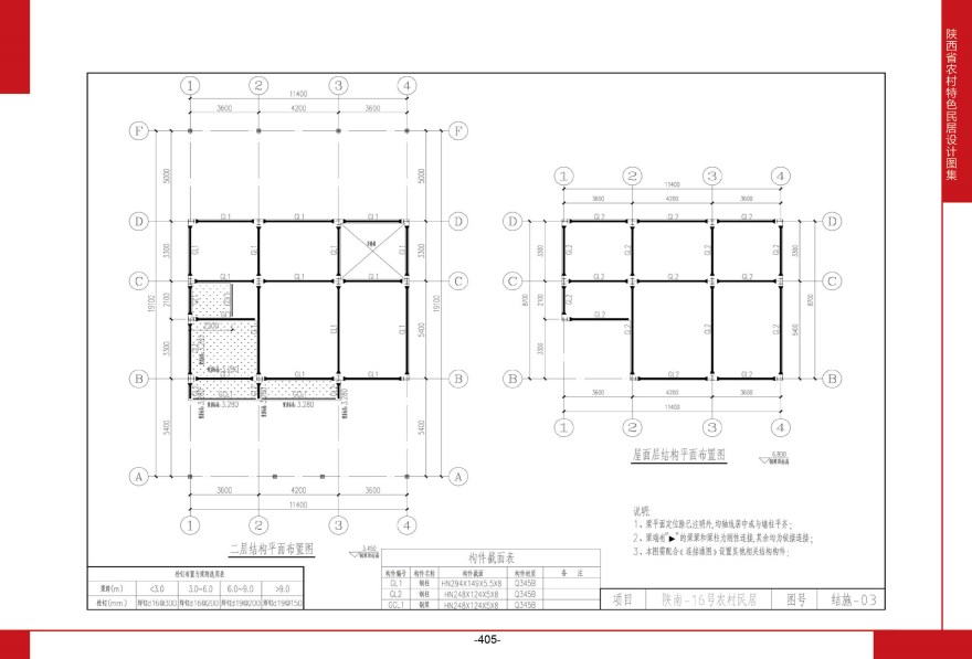
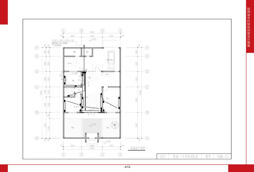
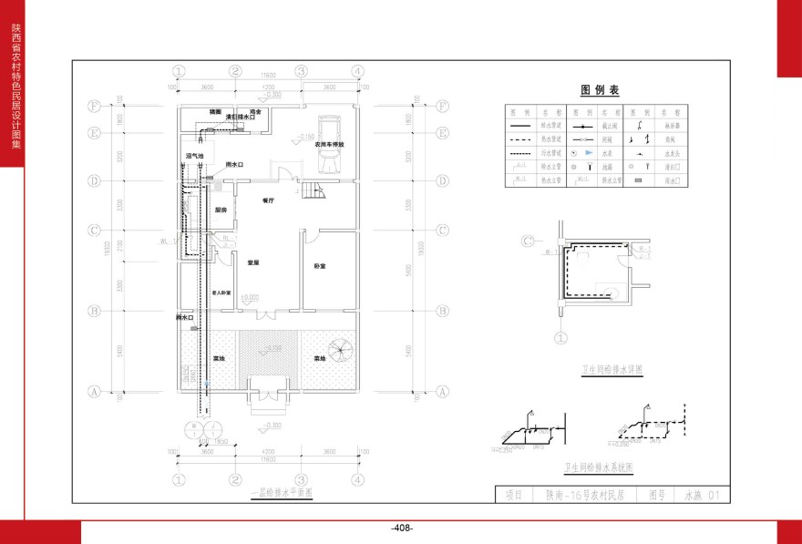
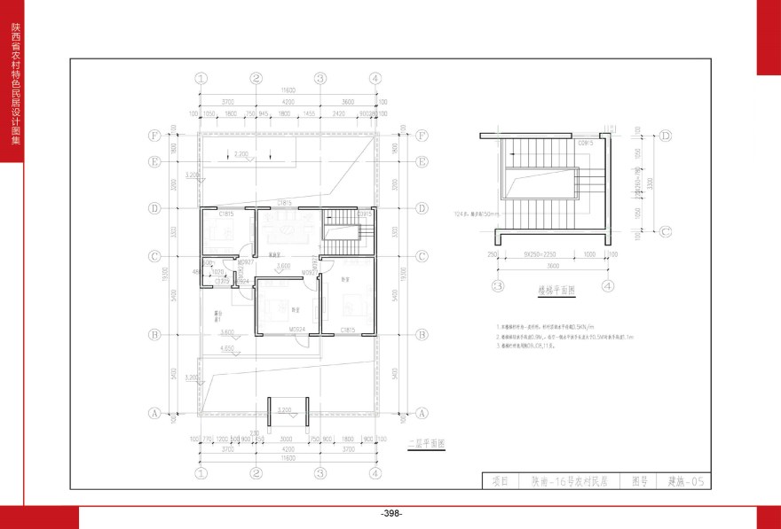
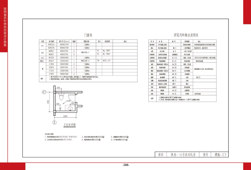
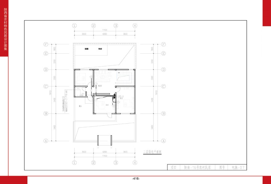
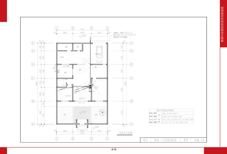
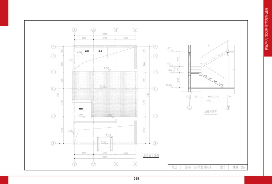
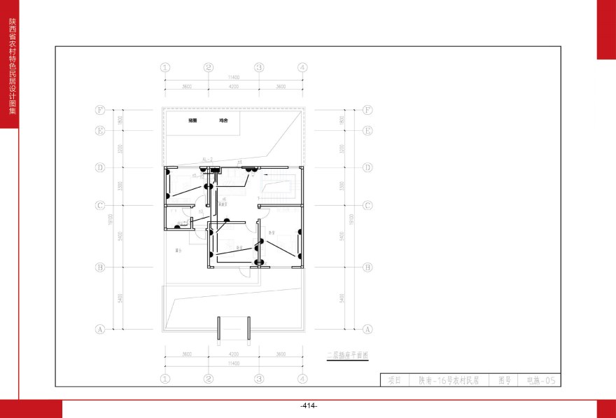
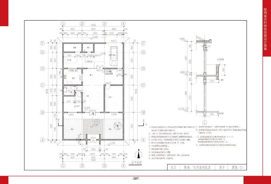
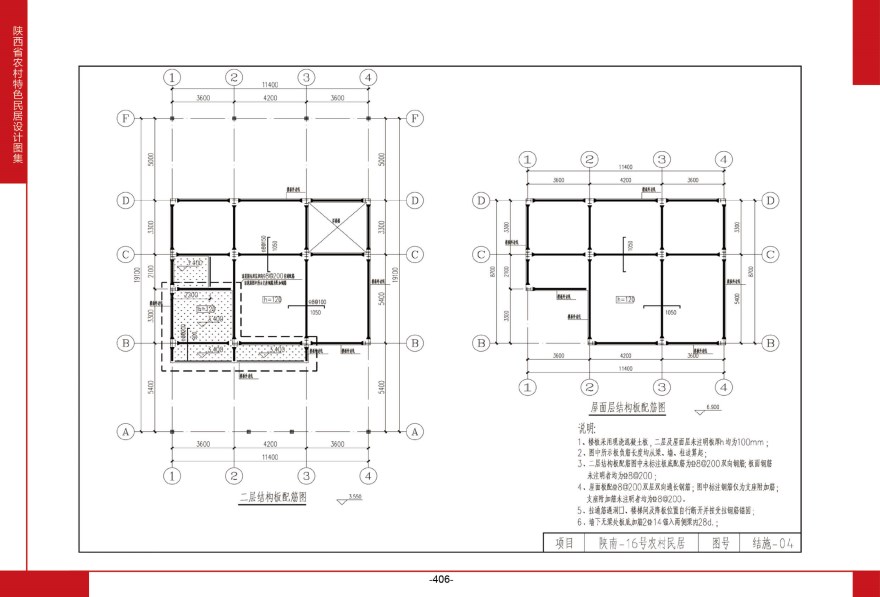
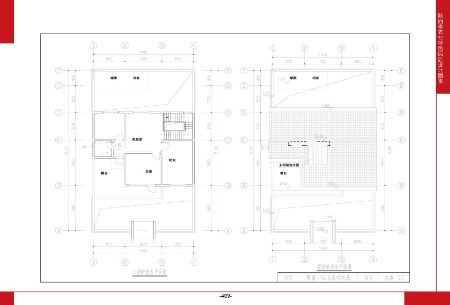
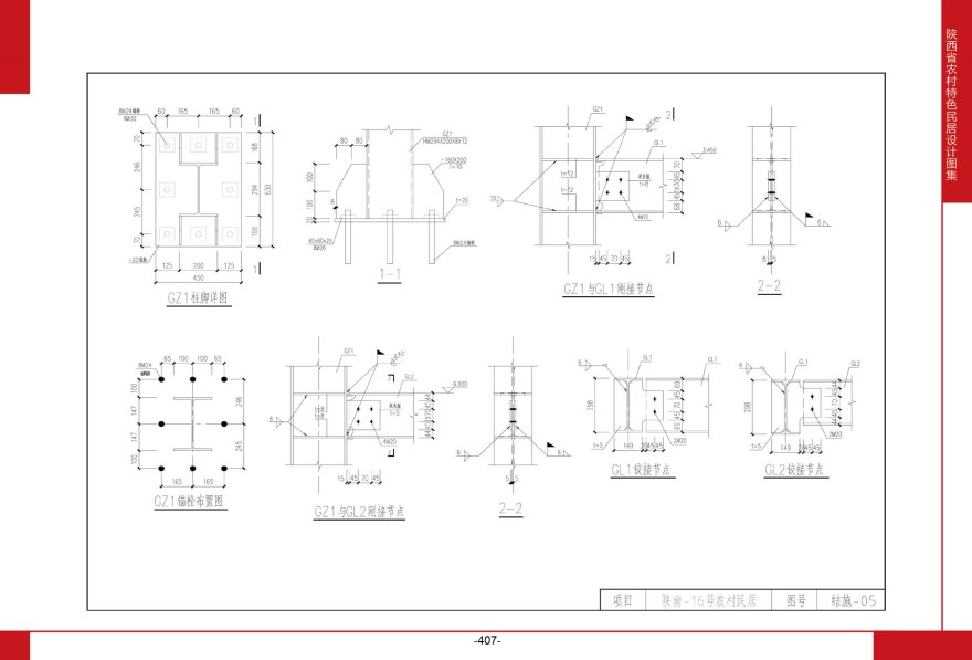
陕南—16号农村民居方案
评论(0)
登录
后可以评论
相关图片
更多 >
鹰潭市特色农房方案1
大小:约22.96MB
鹰潭市特色农房方案3
大小:约49.90MB
鹰潭市特色农房方案2
大小:约46.05MB
上饶市特色农房方案7
大小:约28.14MB
宜春市特色农房方案5
大小:约13.75MB
宜春市特色农房方案4
大小:约13.16MB
在线客服
官方微信
微信公众号
APP客户端
建议留言
登录后可以评论